Comment gratter et se tenir derrière les projecteurs, et comment pouvez-vous vous diriger ?
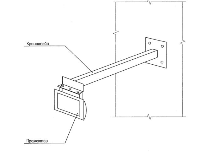
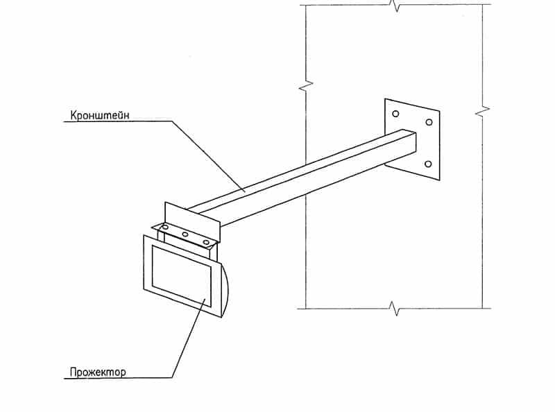
Le projecteur est un dispositif d'éclairage conçu pour l'éclairage externe et artificiel à la surface du golem. Pour l'installation sur un tel équipement, sur le site, sur l'installation, un support spécial pour le projecteur a été utilisé, ce qui est en quelque sorte conforme à la méthode de fixation du produit à l'élément sur la clôture ou à des conceptions spéciales.
Confinement : 1. Kakvi sa gratte pour les projecteurs 2. Comment dirigez-vous l'orthèse vous-même
Kakvi sa gratte pour les projecteurs
Si vous installez des projecteurs ou des éclairages vers le haut, vous ne pouvez pas les diriger sans supports de montage. Dans un tel cas, le produit peut être monté kato glavata sur un support ou sur la surface de la page.
Nai-diffusez en tazi la catégorie de produit de modification, en nommant la perte et la conception du type "couronne".

Modèle et procédé en forme de T sur un sommet fixe du support
Barre transversale de suivre le typique :
- "L" - caractérise tout, de la hauteur à la construction et au surplomb sur la bande de page, au sommet de l'éclairage auto-montant du corps. Ils projettent sur l'illumination du corps selon la technique des dimensions géométriques et de l'épaisseur ;
- "T" - en supposant qu'il a été placé sur le pôle de la source sur la lumière et qu'il est caractérisé par la taille de la déviation sur le camp ;
- "V" et "H" - caractérisent tous avec la taille sur le surplomb de la crête, projetez-le au-dessus de l'auto-assemblage.
Lors de la construction à partir du type «couronne» (dirigé sous le format vers le cercle), on suppose qu'ils installeront un poteau ou un projecteur.

Conception sur la couronne sur le mât pour clarification
Il se fixe sur l'agrafe du support pour l'éclaircissement (mât) et il peut être perverti d'une manière ou d'une autre à partir :
- à l'aide d'un boulon, fixe c'est une torsion avec un boulon;
- xom, porter des écrous et des rondelles ;
- méthode sur la bride, en fixant tous les plis avec des boulons et des écrous.
Avec différents fabricants, ils ont nommé une série de supports pour projecteurs, donc lors du choix d'un design, lisez attentivement les propositions et choisissez le bon modèle.
Moderne Spots LED Ceux-ci sont remarquables non seulement avec de bonnes caractéristiques lumineuses, mais aussi avec une basse température, en quelque sorte avec de petites dimensions géométriques. Ces indicateurs vous permettent d'installer une source de lumière sur le dessus lumineux d'une telle structure, dont certaines proviennent de votre propre pays, vous permettant d'obtenir une clarification de haute qualité sur le sol à un endroit tyahnoto.
La conception sur un support, en particulier pour les projecteurs à LED à faible chaleur, peut être fixée, rotative et rampante sur la fissure.

Possibilités de fixation sur équerres à l'aide d'équerres en tête de support de différentes sections
Parfois, ils placent les corps d'éclairage au-dessus de la façade sur la clôture, ils remplissent des fonctions d'éclairage sur le territoire adjacent, et encore ils servent d'éclairage pour la construction, au-dessus de certaines installations.
Dans le bassin, le dessin de l'agrafe de la façade peut être différent.
Certaines des options sont possibles pour une telle conception, destinée à être montée sur l'évent sur le haut brillant du mur, comme indiqué dans la figure suivante :

Scobie pour montage vertical en surface (sur la façade sur la clôture) retour kjm sdzharzhanieto ↑
Comment dirigez-vous l'orthèse vous-même
Nay-lesniyat démarre et dirige le support derrière le projecteur LED e, e lek et non depuis le golem de la section métallique de la structure.
Si le consommateur sait comment travailler avec l'équipement de soudage et les outils électriques portatifs, la figure suivante s'affiche :

Support du tube profilé et metalen ygl
Le travail sur la production sur le modèle Tosi est pervers, suivant en quelque sorte :
- ce détail est arraché à un tuyau carré profilé de section 40 × 40 mm, qui doit correspondre à l'éclairage naturel (éclairage, local, général, etc.), à une sorte de projecteur et d'osiguri;
- chaque détail est rayé de la section metalen gl gl ss 40 × 40 × 4 mm, longueur de mu treabva et respect de la longueur de la longueur pour la longueur du projecteur, destiné à l'installation ;
- les creux s'enfoncent dans le détail de l'éblouissement, dans des endroits, correspondant à ouvrir la porte aux projecteurs ;
- un détail d'une taille de 150 × 150 mm est rayé d'une tôle avec un debelin de 2,0 mm, une trace de quelque chose dans la braise perce l'ouverture de montage pour la fixation au support mural;
- les pièces de la préparation de la pièce sont regroupées en une seule structure par brassage ;
- support sglobénate e recouvert d'une couche de terre et d'une trace de boyadisan.

Option pour support nai-prostate pour installation sur le projecteur, fabriqué à partir d'un profilé métallique
Comment monter un projecteur au mur
Sinon, la manière de fixer le support au mur dépend du matériau à partir duquel le mur est dirigé.
Projecteur Ako, montiran sur supports, e montiran au-dessus d'un darvena est une conception décente, puis des clous ou des vis pour un darvo peuvent et utilisent tous une sorte de fixations. Ako stenata e rotten, puis utilisez des chevilles à distance ou de montage, martelez à l'aide d'un équipement spécialement équipé (tournevis, outil pneumatique, pistolet, etc.). E, comme le stenata est en béton, togawa peut et être utilisé par les ancres des boulons.
Pour votre information! Si vous utilisez des goujons à expansion et des boulons d'ancrage, il n'est pas nécessaire de les installer au préalable afin qu'ils perforent une ouverture d'un diamètre correspondant au diamètre de la fixation.
La conception du support du projecteur peut être complètement différente, surtout si elle est destinée au raka. Dans ce cas, tout dépend de l'armure du projecteur, de la disponibilité du matériel et de l'imagination du maître, une partie du travail est faite.
PrécédentProjecteursDe quoi avez-vous besoin et comment choisir un illuminateur IR pour caméras vidéoSuivantProjecteursComment choisir un projecteur xénon ou fenerche