Comment essayez-vous, vous savez, pour le câblage électrique dans les appartements sur tavana
Tout le propriétaire du logement ima réparation est basique. Tova peut être une deuxième maison, un appartement dans une nouvelle ville, une nouvelle maison privée ou un veche en cours d'utilisation. Il est unique dès l'étage pour les réparations et est relié à l'électricité. La majeure partie de l'électricité dépend du tavan. Et ici, vous avez beaucoup de questions, comment pouvons-nous tout diriger correctement conformément à GOST, aux coentreprises, au PUE et à d'autres règles. Article Tazi circonférence de base.
Confinement : 1. Quand est-il correctement câblé à tavana ? 2. Méthode de montage sur câble - en ondulation ou en réa ? 3. Comment essayez-vous de trouver un câble, un matériau consommé et d'autres matériaux ? 4. Quel outil est le plus nécessaire pour le travail? 5. Circuits électriques typiques pour l'éclairage et les contacts 6. Tous les éléments électriques sur tavana - avantages et inconvénients, comparez la valeur et l'aspect pratique
Quand est-il correctement câblé à tavana ?
Montiraneto sur le conduit de câble sur la tavana, le béton est perverti, mais il est trop haut sur le mastic de foyer rugueux, au moins 6 cm ou plus, inévitablement recouvert de chauffage et d'approvisionnement en eau, pour une raison quelconque, il est plus haut sur le mastic, jusqu'à 8 cm ou plus.
Le temps de réparer presque une panne en prévision de la présence de faux tavans (voltage, plaques de plâtre et autres types).

Tavanno câblé en prévente.
Distinguer barbouillé et nivelé, comme la tavane est doublée du bas de l'épaule, la méthode est obsolète et peu pratique par rapport au prix et à la fonctionnalité. Difficile d'installer le corps nu du corps, car oui, illuminer le troupeau dans le bon sens.En kashchi, fabriqué à partir du darvo, il est ostensiblement montir sur le tavan et sur les crêtes interfloor, dori sur l'autoroute (un pour chacun dans un groupe en largeur), parfois posé sur le passage sur le tavan ou sur le tavan grossier.

Un exemple pour kabelavane sur darven podtavan.
Dans le kashchi monolithique, il est soigneusement assemblé et ne gémit pas, selon le projet, il est attaché au support de la colonie, dans lequel il est emporté tout le droit zhleb, vdlbnatini ou d'autre part, violant l'intégrité de l'ouvrage.


FAQEst-il possible de le manger soi-même ?Il n'y a pas d'ambiguïté. Balayez les surfaces en béton stoman (produits en béton stoman), pour des raisons de construction (peinture sur le tegloto et augmentation sur le jacost de la cuisine), détruisez ces propriétés lors du bradyavan, certaines peuvent être amenées à un tyahnoto srutvane. Ne déchirez pas les profilés en monolithes en fixant leurs épaulements à des câbles ou à d'autres matériaux. La seule exception est d'ouvrir les attaches des éléments.La distribution de kuti peut-elle être cousue avec des cloisons sèches, des opnati tavani ou d'autres types de tavani?Oui, c'est possible selon GOST R 50571.5.verres de vrazki trebvaOui, vous peuvent accéder pour observation pour mesures et appui, sauf exception, suivre les injections : ... directes par brassage, brasage ou coulage d'aube...". Il n'est pas conseillé d'éditer d'autres options, par souci de ne donner aucune garantie de qualité, de durabilité et de sécurité.
Il est connecté un par un depuis le début, ce qui signifie que l'accès au tazi kutia est ouvert n'est pas toujours nécessaire. Peut-être qu'il est prudent de se cacher sous un faux mur.L'expérience de l'installateur consistait à aider, che kutia, la gradation dans le stenat, le dori et l'accès ouvert à temps pour les réparations cosmétiques ultérieures, souvent recouvertes de tapeti ou d'une couche de mazilka. Ouvrez la porte elle-même, laissant la facture câblée à l'extérieur. C'est un tel tryabva et isole tous les bords. Nai est pratique et sûr pour commencer l'isolation, par ex.

retour kjm sdzharzhanieto ↑
Méthode de montage sur câble - en ondulation ou en réa ?
Et deux méthodes de résolution, mais on considère en faisceaux que c'est très limité. La réponse de Tozi est controversée et peu claire tant pour le client que pour l'installateur. Il est nécessaire de se protéger et tout cela d'un point visible sur les documents réglementaires PUE, SP et GOST. Dans Joint Venture 256.13258000.2016, ce qui est quelque peu approprié de PUE, ima clause 15.8. ouvert - électriquement pervaz, cutia, etc., avec un certificat de conformité conformément à GOST R 53313 ″.
Il y a une autre position dans la coentreprise tov - 15,5. Dans celui-ci, voici un cas: «En protégeant la structure du bâtiment des matériaux ininflammables et légers (groupe G1), il s'agit d'une pose monolithique irremplaçable sur des grilles de groupe en itinérance sur des murs, des barrières, des tavani, sous mazilka, en préparant une couche sur le foyer, torsadés avec un câble ou des conducteurs sous gaine de protection ».
Aux deux points de l'ima, il y a deux pensées contradictoires : « Tryabva » et « permis ». Dans la question, mettre un point sur le point 1.1.17 sur le PUE : « Pour cela, payer une dette pour l'exécution de la recherche sur le PUE, pensez « tryabva », « tryabva », « Nécessaire » et dérivés de tyah.La pensée « est permise », c'est-à-dire que la décision d'appliquer cette exception est forcée (dans un souci de limiter les conditions, de limiter les ressources, d'installer sur des équipements, des matériaux, etc.) ». L'option avec une gaine isolante supplémentaire n'est pas sûre pour le câble lui-même, mais le client décide que quelque chose est mieux pour lui. Voyons maintenant deux méthodes.
Dans le câble ondulé, je pose le tavana sur le monolithe, recouvre le sol en béton, le plie le long du mur en bas et en bas. Toy e est divisé en catégories, espèces, couleurs et mécaniques. Conformément au point 6.4 de GOST R IEC 61386.1-2014, les catégories suivantes sont différentes des options de protection :
- Razprskvane sur la flamme ou non razprskvane.
- Avec ou sans protection contre la corrosion.
- Le degré de protection contre la pénétration de particules solides ou d'eau est basé sur l'indice IP et est normalisé conformément au ch. 5 et 6 GOST 14254-2015g.
- Avec ou sans clignotement (la présence d'un câble stoman dans le câble est tendue sur le câble).
- Limites de température supérieure (de -45 ºC à + 5 ºC) et supérieure (de + 10 ºC à + 400 ºC) conformément au point 6.2 de GOST R IEC 613866.1-2014.
- Puissant ou non - influençant le mu yakost mécanique.
- Résistant au courant électrique (faible conductivité).
Le type de tôle ondulée diffère d'un matériau à l'autre :
- Chlorure de polyvinyle (PVC) et nai - aspect connu et evtin. Il ne propage pas la combustion, mais il n'est pas stable en tant que lumière ultraviolette, pour une raison quelconque, il peut être plus blanc et même pourri. Pas tous preporchva pour l'utiliser ouvertement. Habituellement, c'est la couleur, mais le fabricant produira d'autres options (blanc, noir, caféine, beige ou grain de bois). Tova gofrirane a rampé derrière la cabale dans la clôture. La résistance à la compression (yakost) est divisée en 3 types - lek, moyen et plat (350, 750 et 1100 N, respectivement).Tova est déterminé par la possibilité de monter sur une course ondulée spécifique dans le béton, la porte ou la drogue.
- Polyéthylène - selon la technologie de production de se, les ondulations se distinguent pour le nalyagane bas et haut. Ces désignations sont cato LDPE et HDPE. Ceux-ci sont résistants à la lumière ultraviolette, aux produits pétroliers et à la gelée, mais présentent un risque d'incendie. Communément ceux-ci sont noirs, vers et bleus. Tova gofrirane a rampé pour s'être appuyé sur la navigation par câbles. "Tezhkoto" ondulé en PEHD tous les becs avec du mastic et les tuyaux à double paroi peuvent et seront souterrains. La floraison se produit généralement avec des noirs, des oranges, des vers, dans une rangée bleue. La stabilité à la compression est la différence entre les deux options - 350 et 750N.
- Polypropylène - similaire au type précédent, fabriqué à partir de matériau polymère. Résistant aux facteurs externes et ne soutenant pas les parias. Peut-être que c'est en rampant d'une manière ou d'une autre à l'automne, etc. (non indiqué dans le traitement UV). Particularité de sa résistance aux hautes températures (+115°C). Bloom souvent e syn. Les options Ima à haute puissance coûtent jusqu'à 750N. La trace de ceux qui sont censés pouvoir le remplir de mastic. La stabilité à la compression est la différence entre les deux options - 350 et 750N.
- Polyamide - utilisé pour protéger le câble de l'humidité. Résistant aux UV et adapté à une installation extérieure. Peut être ignifuge (installé à l'intérieur) Résiste aux hautes températures (+150°C). L'offre est en noir.
En fonction de la mécanique du coût et du type d'ondulations du câble. Conformément au point 6.1 de GOST R IEC 61386.1-2014, paramétrez le coût de la division en stabilité sur la tête, l'impact, le rouleau et les marchandises enroulées. Chaque catégorie d'ima a sa propre force, mais l'essentiel est la résistance aux coups. Divisé par tag en suivant :
- Beaucoup de leks - résistance minimale à l'impact (prix nei-niska).
- Leka - yakost mécanique faible, mais golyama gavkavost.
- Moyen - Convient pour être placé dans un mur. Cher pour les dommages causés par l'été et les coups de poing.
- Tezhka est un golyama d'un debelin sur un stenat et un losha gvkavost. Convient pour les becs dans la construction en béton.
- Beaucoup d'options tezhak - nay - izdrzhliviyat et skjp. Il est nécessaire pour la pose en terre ou dans des endroits avec un autre remplissage mécanique.
PréférencesRègles de spasvat Acose pour l'installation (sous un angle de 90º et sans chauffage), le câble peut être remplacé par doris dans un mur enduit.Prévention de la corrosion, des fumées, des cendres, de l'humidité et des dommages mécaniques.Toutes sortes de tavani et de câbles dans les locaux du logement .manque de prix e au temple, écaillé lors de la pose en packs.


La méthode "en faisceau" est installée sur un câble électrique sur une tavana à travers une dalle sur un conducteur dans un faisceau avec un gainage ultérieur. Kolkoto sur le golyam est un snopt, sensible pour -chesto trebva et voici un fixateur sur un tavana, une telle chose et aucun affaissement. L'installation de celle-ci est justifiée conformément au foyer des documents réglementaires et au tout haut de la surface incombustible. Je discute des marques de câbles qui conviennent à la méthode tosy : VVGng-LS, PPGng-HF et NYM.

Installation en poulies et sans isolation supplémentaire Avantages Simplicité et barzin sur l'installateur Apparaît sur la pression de l'eau Prise pour installation dans la maison et la construction.
Avant l'installation, il est bon d'avoir une surface sur un sol monolithique en mastic ou en béton et c'est un régal avec un mortier ignifuge et résistant à l'humidité (car oui, ils se dépêcheront de parier - batailles). L'idée du camarade de comprendre les tavans d'izkhvarlyane sur des particules de béton visibles à la surface et encore plus de plaisir est attachée à l'humidité. C'est une chose préjudiciable d'apprécier le coût sur la machine (pour clarification - pas plus de 10A, pour les contacts - pas plus de 16A).
Comment essayez-vous de trouver un câble, un matériau consommé et d'autres matériaux ?
Pour la pose sur la tavana, des câbles sont utilisés, ce qui garantira une installation correcte, selon GOST 31565-2012, section 5:
- VVGng (A) -LS est un câble difficilement inflammable avec une base en PVC, un indice de sécurité incendie de la catégorie A et une faible émission LS (faible dégagement de fumée).
- PPGng (A) -HF est un câble à âme en polyéthylène (PE) et présente des caractéristiques similaires à VVGng (A) -L.
- NYM est l'équivalent allemand pour les câbles préfabriqués, c'est dans la gaine ronde.
Les consommables comprennent une cheville de montage de 6 mm, des vis autotaraudeuses pour portes et vis à métal, des agrafes pour support ondulé, en métal ou en plastique, une plate-forme avec une manille pour un support, une cheville d'un riben kost pour câbles plats et ronds, simple et shangs de serrage double face, un support avec cheville.
Quel outil est le plus nécessaire pour le travail?
Tavannoto okabelavane iziskva suivez les outils et consommables :
- Mandrin rotatif avec foret 6, 10, 14, 18, 20 mm et plat pour béton.
- Un tournevis avec une pointe sur la vis et une vis autotaraudeuse.
- Pistolet monté sur accumulateur et consommation pour celui-ci.
- Outils à main (jeu de tournevis, pinces, coupe-pages, chuko, volet roulant).
- Gloshlayf (moulin).
- Stenen persécuté avec un prahosmukachka industriel pour okachvane le long de la stenite.
Parfois, vous travaillez avec une perceuse à percussion, un pistolet monté, une meuleuse et un chasseur de mur, et vous devez utiliser vos moyens personnels: des lunettes, selon les conditions de travail (ouverture ou fermeture), un respirateur et des rakavitsi en tissu, parfois prévenir l'éveil et l'épuisement professionnel.
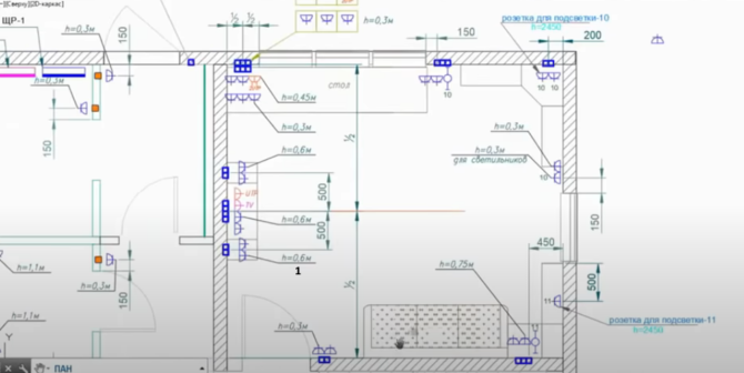
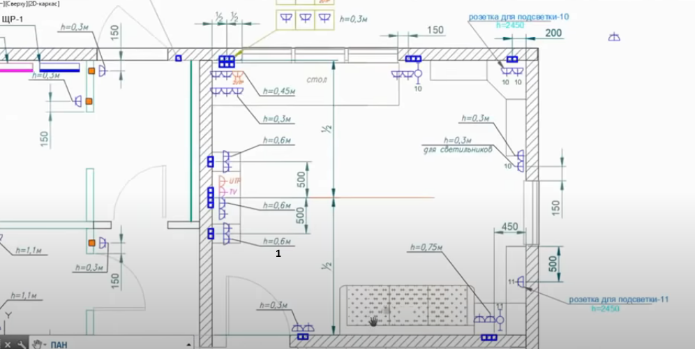
Circuits électriques typiques pour l'éclairage et les contacts
Installé sur le câblage électrique du terrain de l'appartement et de la maison particulière, un plan a été établi selon les règles, certains montrant le résultat final - lampes, contacts, clé, appareillage électrique, points sur le stockage (four, chaudière, etc.) , conducteur de ligne. Le marqueur de jouet est un dessin général sur le stait, une subdivision sur les meubles et domakinski uredi. Ako la zone est petite et décidez et envoyez-la aux appartements avec votre propre tableau de bord, vous pouvez dessiner un schéma simple sur la feuille de charte. Tova e est beaucoup de bien, otkolkoto et darzhish vsichko dans la tête de si.

Le contour est simplement dessiné.
Dans le cas d'une petite surface, peu d'étages, d'équipements complexes, d'expérience en conception et installation, vous pouvez faire appel à un spécialiste en conception et installation. Ima et un ami de l'opportunité - oui, préparez le projet, envoyez des candidatures et envoyez l'échange via des programmes spéciaux: Microsoft Visio, Dia, Splan. L'agencement du projet se compose d'une notice explicative du concepteur, de symboles, d'un emplacement sur la lampe et l'interrupteur, d'un système de mise à niveau du potentiel et de schémas unifilaires montrant les équipements de protection sur le foyer dans le bouclier.
Voici les options pour un plan typique avec une définition de désignation :
Planifier la clarification du tavanno
- Pour plus de commodité, veuillez connecter la lampe avec le numéro attribué à l'interrupteur.
- Désignation sur le distributeur cutia.
- Lampe suspendue (applique).
- Déterminez le pays sur la porte de la porte.
- Polyley.
Finition à l'origine
Indication de haut en fin de cuisson sous.
Emplacement sur l'autoroute du mur vgraden (numéro sa markrani à cherveno).
- Spécification pour les cuties de l'appareillage pour les contacts.
- Positionnement Directement sur le mur entre les câbles de la pointe à la coupe et protéger le panneau.
- Détermination des limites des murs de trabi prez.
- Broyat sur l'âme du câble.
Planifier l'emplacement aux points de courant faible
- UTP - prises pour conducteurs Internet et points Wi-Fi.
- TV - Prises de câbles TV.
Schéma de mise à niveau sur le potentiel (mise à la terre et connexion du bus de mise à la terre principal pour tous les tuyaux, coupures des équipements métalliques).


Tous les éléments électriques sur tavana - avantages et inconvénients, comparez la valeur et l'aspect pratique
Pas de prix fixe ni de liste de prix pour les travaux d'installation. Sortez de votre chemin et entrez en contact avec la population. Vvv Voronej et à Moscou - plus de 100 000 roubles. Vous pouvez, oui, déterminer les différences de prix d'un pourcentage du même pour déterminer le type de travail. Par exemple, un prix pour un seul mètre pour un câble, mis dans un carton ondulé, e de 20% pour -skjp d'une gerbe. Distributeur de cutia sur tavana avec 25% à -eutina de détourneur de cutia dans stenata. Ima est différent en prix pour kabelavaneto à kutiya : skjpo - zavaryavane ; moyen en termes de prix, de qualité et de conformité aux documents réglementaires - pressé avec un tuyau thermoscellé; nay-evtinata et contradictoire e vrzkata avec tag sur WAGO et bavardage vrzki.
Tout installateur a besoin de plus d'expérience et s'assure que la méthode d'installation est pratique.La réparation principale de cette perversion durera de nombreuses années et le tremblement et cela je prévois qu'elle sera utile tout à l'heure. Pas une garantie pour un service à long terme. Par -skjpi dans le travail et à partir du prix du matériel, la réparation est déformée, prévoyant tout cela à l'avenir - ventre d'exploitation dlgiyat.
Tavannoto kabelevane e nay - type d'installation pratique et travail sur-natatshna. Ils l'ont donné en carton ondulé ou en poulies, avec une sorte de câble, avec un accès limité au distributeur kutia ou non, mais pervertissez le travail vous-même ou avec l'aide de spécialistes - c'est à vous de décider. Les informations contenues dans l'article tazi sont utiles et vous prendrez la bonne décision.







